物件No:

12000011963

空とつながる、2階のリビング。外からの視線を気にせず、家族だけの時間を一番日当たりの良い場所で。希望ケ丘3丁目【CIEL】

お問い合わせの際は「物件No.」をお伝え下さい。

電話でのお問い合わせ

0985-22-2288

売主

CIEL

3,580万円

宮崎市希望ケ丘

建売

オススメ
仲介料無料0
補助金対象
制震ダンパー
フラット35S(A)対象
価格
月々支払い
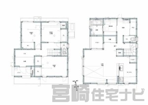
間取
学校区
築年月
階数
面積
資料ダウンロード
3,580万円
82,647
3LDK
本郷小
本郷中
2026/03
2階建
土地/133.18m²
建物/105.78m²
ダウンロードする
価格 3,580万円 月々支払 82,647
間取 3LDK 学校区 本郷小、本郷中
築年月 2026/03 階数 2階建
面積 土地/133.18m² 建物/105.78m²

POINT

この商品の特長・魅力

物件の特徴

【小学校まで徒歩3分!安心と開放感を手に入れる希望ケ丘の1棟】

 

学校まで、わずか徒歩3分。 お子様の『いってきます』から『ただいま』まで、心から安心できる距離。朝の準備にも家族にゆとりが生まれます。

 

空と緑を独り占めする2階リビング。 グラウンドへの眺望が広がり、外からの視線を気にせずカーテンを開け放って暮らせます。一番日当たりの良い場所が、家族最高の特等席に。

 

家事をスマートにする「ワンフロア動線」。 『洗う・干す・取り込む』が2階だけで完結。ガス衣類乾燥機「乾太くん」を標準装備し、天気を気にせず家事を時短できます。

 

限られた敷地を有効活用し、外部収納も完備。暮らしやすさをカタチにした希望ケ丘【CIEL】、ついに誕生。

 

 

―立地―
◇本郷小学校まで徒歩3分(170m) 
◆本郷中学校まで徒歩2分(140m)

 

―設備・構造―
◇制震ダンパー搭載!地震対策済みの建物構造
◆対面式のキッチンなのでご家族の様子を見ながら料理ができます♪
◇2階に浴室「脱ぐ→洗う→干す→しまう」の動線がスムーズ。
◆2階にリビングなので外からの視線が気にならない。
◇パントリー収納あり♪
◆外部収納あり♪
◇収納豊富なファミリークローク付
◆玄関スマートキー
◇樹脂サッシ採用
◆食洗機(深型採用)
◇キッチンタッチレス水栓
◆ガス衣類乾燥機「乾太くん」標準仕様
◇オール電化住宅

  • CIELは「シンプルにセンスよく」をコンセプトに飾りすぎないシンプルなデザインが魅力。外壁材は雨で汚れを洗い流すKMEW製の「親水コート」を採用。宅配ボックス完備で不在時のお荷物受け取りもスムーズ♪

    CIELは「シンプルにセンスよく」をコンセプトに飾りすぎないシンプルなデザインが魅力。
    外壁材は雨で汚れを洗い流すKMEW製の「親水コート」を採用。宅配ボックス完備で不在時のお荷物受け取りもスムーズ♪

  • 間取り・区画
  • 【リビング】2階リビングならではの明るい日差しが魅力で、「外からの視線を気にせず、カーテンを開け放てる開放感」があります。掃き出し窓を開ければベランダまで視線が抜け、空間がさらに広く感じられます。カウンター下の収納には、趣味の雑貨を並べて自分らしい暮らしを表現できます。

    【リビング】2階リビングならではの明るい日差しが魅力で、「外からの視線を気にせず、カーテンを開け放てる開放感」があります。掃き出し窓を開ければベランダまで視線が抜け、空間がさらに広く感じられます。カウンター下の収納には、趣味の雑貨を並べて自分らしい暮らしを表現できます。

  • 前面道路は8mで、車の出し入れもスムーズです。

    前面道路は8mで、車の出し入れもスムーズです。

  • 立面図掲載中。各立面図(東・西・南・北)から建物の形状・窓の配置・屋根勾配などがご確認いただけます。

    立面図掲載中。各立面図(東・西・南・北)から建物の形状・窓の配置・屋根勾配などがご確認いただけます。

  • 【仲介手数料無料】こちらの物件は仲介手数料が不要です。本来不動産の購入をする際は(本体価格×3%+6万円×消費税)の仲介手数料が必要ですが、直接お問い合わせいただければ当該物件は仲介手数料不要です。

    【仲介手数料無料】こちらの物件は仲介手数料が不要です。本来不動産の購入をする際は(本体価格×3%+6万円×消費税)の仲介手数料が必要ですが、直接お問い合わせいただければ当該物件は仲介手数料不要です。

  • 【制震ダンパー】揺れを吸収する装置である制震ダンパーを住宅に組み込むと、地震発生時における家の変位を大幅に低減できる場合があります。また、変位量の抑制は家の損傷を最小限に抑え、繰り返す地震に対しても高い強度を期待できます。

    【制震ダンパー】揺れを吸収する装置である制震ダンパーを住宅に組み込むと、地震発生時における家の変位を大幅に低減できる場合があります。また、変位量の抑制は家の損傷を最小限に抑え、繰り返す地震に対しても高い強度を期待できます。

  • 【補助金対象】みらいエコ住宅2026事業対象物件につき35万円の補助金が受け取れます!※予算に達し次第予告なしに終了します。

    【補助金対象】みらいエコ住宅2026事業対象物件につき35万円の補助金が受け取れます!※予算に達し次第予告なしに終了します。

  • 【フラット35SA】省エネや耐震性など「質の高い住宅」への金利引き下げ制度【フラット35SA】対応住宅のため、金利がお得!

    【フラット35SA】省エネや耐震性など「質の高い住宅」への金利引き下げ制度【フラット35SA】対応住宅のため、金利がお得!

  • 【リビング・ダイニング】ご家族が集まるリビング・ダイニングは、温かみのある木目調のフローリングと白い壁紙が、清潔感のある空間を作り出します。複数の窓から風が通り抜け、日々の暮らしを爽やかに彩ります!対面式キッチンを採用しているので、お料理をしながらご家族との会話や様子を見守れます。

    【リビング・ダイニング】ご家族が集まるリビング・ダイニングは、温かみのある木目調のフローリングと白い壁紙が、清潔感のある空間を作り出します。複数の窓から風が通り抜け、日々の暮らしを爽やかに彩ります!
    対面式キッチンを採用しているので、お料理をしながらご家族との会話や様子を見守れます。

  • 【リビング窓】キッチンから見える窓は周囲の視線を気にせず、外の風景をゆったりと取り込めます。右側のバルコニーに繋がる窓へと抜ける風を感じながら、キッチンに立つ時間が楽しみになる空間です。

    【リビング窓】キッチンから見える窓は周囲の視線を気にせず、外の風景をゆったりと取り込めます。右側のバルコニーに繋がる窓へと抜ける風を感じながら、キッチンに立つ時間が楽しみになる空間です。

  • 【キッチン(人造大理石の天板)】キッチンは人造大理石天板を使用。人造大理石は汚れが付きにくく、水垢も目立ちにくいので、お掃除は比較的に楽で水まわり設備に適した素材です。

    【キッチン(人造大理石の天板)】キッチンは人造大理石天板を使用。人造大理石は汚れが付きにくく、水垢も目立ちにくいので、お掃除は比較的に楽で水まわり設備に適した素材です。

  • 【パントリー】キッチン横に設けたパントリーは、可動棚付きで細かな食品ストックから調理器具まで柔軟に整理できます。扉を閉めれば生活感を抑えられ、急な来客時も安心。毎日の家事をスムーズにサポートする心強い空間です。

    【パントリー】キッチン横に設けたパントリーは、可動棚付きで細かな食品ストックから調理器具まで柔軟に整理できます。扉を閉めれば生活感を抑えられ、急な来客時も安心。毎日の家事をスムーズにサポートする心強い空間です。

  • 【浴室】保温機能付きの浴槽は、お湯が冷めにくく、光熱費の節約にもつながります。また、浴室乾燥機が付いており、梅雨の時期や花粉の季節にも大活躍。毎日の暮らしに嬉しい、快適さと経済性を備えた設備です。

    【浴室】保温機能付きの浴槽は、お湯が冷めにくく、光熱費の節約にもつながります。また、浴室乾燥機が付いており、梅雨の時期や花粉の季節にも大活躍。毎日の暮らしに嬉しい、快適さと経済性を備えた設備です。

  • 【洗面室】洗面台のすぐ隣にクローゼットを配置。朝の身支度も一ヶ所で済むため、忙しい時間帯の時短をサポートします。便利な造作棚は、タオル類や洗剤のストック場所としても重宝し、空間をすっきり保てます。

    【洗面室】洗面台のすぐ隣にクローゼットを配置。朝の身支度も一ヶ所で済むため、忙しい時間帯の時短をサポートします。便利な造作棚は、タオル類や洗剤のストック場所としても重宝し、空間をすっきり保てます。

  • 【脱衣室】ライフスタイルに合わせて高さを変えられる可動棚を完備。ストック品やリネン類もすっきり整理できます。さらにガス衣類乾燥機「乾太くん」を導入することで、室内干しの手間を省き、清潔感のある空間を保ちます。

    【脱衣室】ライフスタイルに合わせて高さを変えられる可動棚を完備。ストック品やリネン類もすっきり整理できます。さらにガス衣類乾燥機「乾太くん」を導入することで、室内干しの手間を省き、清潔感のある空間を保ちます。

  • 【温水洗浄便座】いつでも快適にトイレを利用するためには無くてはならない必需品。温水洗浄便座は紙資源の節約はもちろん衛生面でも効果的です。

    【温水洗浄便座】いつでも快適にトイレを利用するためには無くてはならない必需品。温水洗浄便座は紙資源の節約はもちろん衛生面でも効果的です。

  • 【1階北側洋室】2つのクローゼットを設けた洋室。ご夫婦で収納を分けたり、季節物と日常着で使い分けたりと、暮らしに合わせた整理が可能です。主寝室としてはもちろん、お子様のお部屋としても活躍します。荷物をすっきりと収めることで、居住スペースをより広く確保できます!

    【1階北側洋室】2つのクローゼットを設けた洋室。ご夫婦で収納を分けたり、季節物と日常着で使い分けたりと、暮らしに合わせた整理が可能です。主寝室としてはもちろん、お子様のお部屋としても活躍します。荷物をすっきりと収めることで、居住スペースをより広く確保できます!

  • 【1階南西側洋室】白を基調とした洋室。あらかじめエアコンが設置されており、季節を問わず心地よくお過ごしいただけます。窓からは自然光が差し込み、子ども部屋や書斎、趣味の部屋など様々な用途で使いやすい空間です。

    【1階南西側洋室】白を基調とした洋室。あらかじめエアコンが設置されており、季節を問わず心地よくお過ごしいただけます。窓からは自然光が差し込み、子ども部屋や書斎、趣味の部屋など様々な用途で使いやすい空間です。

  • 【1階南東側洋室】壁面を広く使えるシンプルな洋室。2つの収納を備え、お子様の成長とともに増える学用品や衣類もしっかり整理できます。家具の配置がしやすいシンプルな間取りです!

    【1階南東側洋室】壁面を広く使えるシンプルな洋室。2つの収納を備え、お子様の成長とともに増える学用品や衣類もしっかり整理できます。家具の配置がしやすいシンプルな間取りです!

  • 【2階トイレ】白を基調とした清潔感あふれる2階トイレ。コンパクトな空間ながら、小窓から自然光が入り、明るく圧迫感のない仕上がりです。温水洗浄便座などの機能も備え、毎日の生活に欠かせない場所を心地よく整えました。

    【2階トイレ】白を基調とした清潔感あふれる2階トイレ。コンパクトな空間ながら、小窓から自然光が入り、明るく圧迫感のない仕上がりです。温水洗浄便座などの機能も備え、毎日の生活に欠かせない場所を心地よく整えました。

  • 【リビング収納】リビングの一角に設けた可動棚付きの大きな収納スペース。掃除道具や日用品、家族で共有する書類など、生活動線に合わせて効率よく整理できます。扉付きのため、室内をすっきりと保ちながら必要な時にすぐ手に取れます。

    【リビング収納】リビングの一角に設けた可動棚付きの大きな収納スペース。掃除道具や日用品、家族で共有する書類など、生活動線に合わせて効率よく整理できます。扉付きのため、室内をすっきりと保ちながら必要な時にすぐ手に取れます。

  • 【造作棚】キッチン横の造作棚は家事の合間に一息ついたり、お子様の宿題を見守ったりと、家族の気配を感じながら多目的に使えます。南側の窓から光が差し込む、明るいワークスペースです。

    【造作棚】キッチン横の造作棚は家事の合間に一息ついたり、お子様の宿題を見守ったりと、家族の気配を感じながら多目的に使えます。南側の窓から光が差し込む、明るいワークスペースです。

  • 【手洗い器】階段横に設けた便利な手洗いスペース。帰宅後すぐに手が洗えるだけでなく、お客様にも気兼ねなく使っていただける配置です。照明にもこだわった洗練されたデザインが、住まいのアクセントとなります。

    【手洗い器】階段横に設けた便利な手洗いスペース。帰宅後すぐに手が洗えるだけでなく、お客様にも気兼ねなく使っていただける配置です。照明にもこだわった洗練されたデザインが、住まいのアクセントとなります。

  • 【外部収納】玄関ポーチ横に設けた外部収納は、鍵付きで防犯面にも配慮。お子様の外遊び道具や洗車道具の保管に便利です。内部には有孔ボードを備え、小物の吊り下げ収納も可能です。汚れを室内に持ち込まず、趣味のアイテムをすっきり整理できます。

    【外部収納】玄関ポーチ横に設けた外部収納は、鍵付きで防犯面にも配慮。お子様の外遊び道具や洗車道具の保管に便利です。内部には有孔ボードを備え、小物の吊り下げ収納も可能です。汚れを室内に持ち込まず、趣味のアイテムをすっきり整理できます。

  • そこで生活すればみんなが自然に「にこっ」としてしまう家。そんな住宅をお届けしたいという想いを込めて私達はCIELを造りました。

    そこで生活すればみんなが自然に「にこっ」としてしまう家。そんな住宅をお届けしたいという想いを込めて私達はCIELを造りました。

  • 資材価格が上がる前に、理想の住まいを今の価格で手に入れるチャンスです!大興不動産では、無理のない支払いで叶う「ちょうどいい価格」のコンセプト住宅を多数ご案内中。ご家族皆様でぜひご体感ください。

    資材価格が上がる前に、理想の住まいを今の価格で手に入れるチャンスです!大興不動産では、無理のない支払いで叶う「ちょうどいい価格」のコンセプト住宅を多数ご案内中。ご家族皆様でぜひご体感ください。

  • 【充実の設備付き価格】当社の建売住宅は、通常は別途費用となるテレビアンテナ・照明・リビングエアコンなどの充実設備に加え、省令準耐火構造で火災保険料も軽減。初期費用を抑えたマイホーム購入をサポート!

    【充実の設備付き価格】当社の建売住宅は、通常は別途費用となるテレビアンテナ・照明・リビングエアコンなどの充実設備に加え、省令準耐火構造で火災保険料も軽減。初期費用を抑えたマイホーム購入をサポート!

Ciel

STANDARD

40

コミコミ充実設備!この設備が標準で付いています。

断熱玄関ドア

スマートキー

カメラ付インターホン

手動シャッター付
(1階掃き出し部分)

郵便ポスト

宅配ボックス

TVアンテナ

防草シート
(シート上砂利敷)

土間コンクリート舗装

Low-E複層ガラス
(アルゴンガス⼊リ)

樹脂窓

網戸

シューズクローク

全部屋収納付

ウォークイン
クローゼット

カーテンレール付
(一部)

深型⾷洗機付

⼈造⼤理⽯のキッチン天板

タッチレス水栓

IHクッキングヒーター

三面鏡化粧台

キレイアップ⽔栓

保温浴槽

浴室換気乾燥暖房機付

温水洗浄便座

室内物干し

収納ニッチ

リビングエアコン

全部屋照明付

突板フローリング

オール電化

ヒノキ材
(⼟台・柱)

人工乾燥材

制震ダンバー

ウレタン断熱

「BELS」省エネ基準に適合する仕様

「ZEH」基準を
満たした住宅

省令準耐火構造

地盤保証
(最長35年)

しろあり10年保証

※BELSは物件によって評価が異なります
※物件により仕様が異なる場合がございます

※2024年6月28日時点

この商品のポイント

Point

2026/05/13

本郷小学校まで徒歩3分。2階リビング×家事ラク動線でスマートに暮らす。希望ケ丘3丁目【CIEL】
◇仲介手数料無料!◆全室照明付き!◇リビングエアコン付き!◆ZEH基準住宅◇制震ダンパー搭載◆カーテンレール付き◇タッチレス水栓・深型食洗機付キッチン!◆キーレス玄関

外観イメージ

exterior

外観イメージ

【限定1棟】希望ケ丘3丁目【CIEL】~シンプルにセンス良く暮らす家~嬉しい全室収納スペース付きは広々とした空間を演出できます。
駐車2台可能。オール電化対応。

■本郷小学校まで徒歩3分(170m) 
■本郷中学校まで徒歩2分(140m) 

内観イメージ

interior

内観イメージ

■断熱玄関ドア■タッチレス水栓■深型食洗機付き■全室LED照明付き■カメラ付インターホン■住宅瑕疵担保保険10年保証■地盤保証35年保証■オール電化住宅■省令準耐火構造(フラット35SA適用可)■スマートキー対応■樹脂サッシ■構造材ヒノキ使用(梁桁除く)■しろあり保証■宅配ボックス■Low-E複層ガラス(アルゴンガス入り)■保温浴槽■ウレタン吹付■ZEH基準

動画ライブラリー

この物件の支払い例(当初10年間)

月々

82,647

頭金0円・ボーナス払い10万円(年2回)

※全額借入、35年返済、固定金利1.1%の場合

※お支払い例は、当社紹介の地方銀行ローン
(固定金利1.1%、35年返済、融資限度額1億円)となります。
※経済情勢等により内容が変更となる場合がございます。
※お借り入れ条件によっては支払金額が
変更になる可能性があります。

周辺情報

※「地図上の対象物件の位置はプログラムで自動表示したもので、
実際の位置と異なる場合があります。

ログインすると地図検索が利用可能です

物件概要

物件種別 新築住宅 物件No. 12000011963
所在地 宮崎県宮崎市希望ケ丘

※ログインでマップの閲覧可能

小学校区 本郷小学校(170m) 中学校区 本郷中学校(140m)
土地面積 133.18m²(40.28坪) 建物面積 105.78m²(31.99坪)
構造 木造 階数 地上2階
間取り 3LDK 築年月 2026年03月(築2ヶ月)
駐車場 有(3台) 水道
ガス 排水
都市計画 市街化区域 用途地域 第一種低層住居専用
地目 宅地 土地権利 所有権
国土法 不要 私道負担
建ぺい率 50% 容積率 80%
取引態様 売主 現況 空家
引渡時期 即 
交通 希望ケ丘バス停まで徒歩7分
接道状況 西側 幅員8m 公道に12.1m接道
設備
セールス
ポイント
本郷小学校まで徒歩3分。2階リビング×家事ラク動線でスマートに暮らす。希望ケ丘3丁目【CIEL】
仲介手数料 0円
情報登録日 2025年10月23日
情報更新日 2026年05月13日
有効期限 2026年05月27日 
※次回更新日は前回更新日より14日以内

お問い合わせ・見学予約

お急ぎの方はこちらへどうぞ

LINEで簡単お問い合わせ!
  • 入力
  • 確認
  • 完了

必要項目を入力し「内容を確認する」ボタンを
押してください。

必須

お問い合わせ内容

必須

お名前

必須

フリガナ

必須

メールアドレス

必須

電話番号

任意

ご連絡希望時間帯

任意

その他の要望

【個人情報の取扱いについて】

本フォームから記入・登録された情報は、資料送付・電子メール送信・電話連絡などの目的で利用・保管します。
プライバシーポリシーにつきましてはこちらをご覧ください。

内容を確認する
ページトップへ戻る
  • X

    CIELは「シンプルにセンスよく」をコンセプトに飾りすぎないシンプルなデザインが魅力。
    外壁材は雨で汚れを洗い流すKMEW製の「親水コート」を採用。宅配ボックス完備で不在時のお荷物受け取りもスムーズ♪

  • X
  • X

    【リビング】2階リビングならではの明るい日差しが魅力で、「外からの視線を気にせず、カーテンを開け放てる開放感」があります。掃き出し窓を開ければベランダまで視線が抜け、空間がさらに広く感じられます。カウンター下の収納には、趣味の雑貨を並べて自分らしい暮らしを表現できます。

  • X

    前面道路は8mで、車の出し入れもスムーズです。

  • X

    立面図掲載中。各立面図(東・西・南・北)から建物の形状・窓の配置・屋根勾配などがご確認いただけます。

  • X

    【仲介手数料無料】こちらの物件は仲介手数料が不要です。本来不動産の購入をする際は(本体価格×3%+6万円×消費税)の仲介手数料が必要ですが、直接お問い合わせいただければ当該物件は仲介手数料不要です。

  • X

    【制震ダンパー】揺れを吸収する装置である制震ダンパーを住宅に組み込むと、地震発生時における家の変位を大幅に低減できる場合があります。また、変位量の抑制は家の損傷を最小限に抑え、繰り返す地震に対しても高い強度を期待できます。

  • X

    【補助金対象】みらいエコ住宅2026事業対象物件につき35万円の補助金が受け取れます!※予算に達し次第予告なしに終了します。

  • X

    【フラット35SA】省エネや耐震性など「質の高い住宅」への金利引き下げ制度【フラット35SA】対応住宅のため、金利がお得!

  • X

    【リビング・ダイニング】ご家族が集まるリビング・ダイニングは、温かみのある木目調のフローリングと白い壁紙が、清潔感のある空間を作り出します。複数の窓から風が通り抜け、日々の暮らしを爽やかに彩ります!
    対面式キッチンを採用しているので、お料理をしながらご家族との会話や様子を見守れます。

  • X

    【リビング窓】キッチンから見える窓は周囲の視線を気にせず、外の風景をゆったりと取り込めます。右側のバルコニーに繋がる窓へと抜ける風を感じながら、キッチンに立つ時間が楽しみになる空間です。

  • X

    【キッチン(人造大理石の天板)】キッチンは人造大理石天板を使用。人造大理石は汚れが付きにくく、水垢も目立ちにくいので、お掃除は比較的に楽で水まわり設備に適した素材です。

  • X

    【パントリー】キッチン横に設けたパントリーは、可動棚付きで細かな食品ストックから調理器具まで柔軟に整理できます。扉を閉めれば生活感を抑えられ、急な来客時も安心。毎日の家事をスムーズにサポートする心強い空間です。

  • X

    【浴室】保温機能付きの浴槽は、お湯が冷めにくく、光熱費の節約にもつながります。また、浴室乾燥機が付いており、梅雨の時期や花粉の季節にも大活躍。毎日の暮らしに嬉しい、快適さと経済性を備えた設備です。

  • X

    【洗面室】洗面台のすぐ隣にクローゼットを配置。朝の身支度も一ヶ所で済むため、忙しい時間帯の時短をサポートします。便利な造作棚は、タオル類や洗剤のストック場所としても重宝し、空間をすっきり保てます。

  • X

    【脱衣室】ライフスタイルに合わせて高さを変えられる可動棚を完備。ストック品やリネン類もすっきり整理できます。さらにガス衣類乾燥機「乾太くん」を導入することで、室内干しの手間を省き、清潔感のある空間を保ちます。

  • X

    【温水洗浄便座】いつでも快適にトイレを利用するためには無くてはならない必需品。温水洗浄便座は紙資源の節約はもちろん衛生面でも効果的です。

  • X

    【1階北側洋室】2つのクローゼットを設けた洋室。ご夫婦で収納を分けたり、季節物と日常着で使い分けたりと、暮らしに合わせた整理が可能です。主寝室としてはもちろん、お子様のお部屋としても活躍します。荷物をすっきりと収めることで、居住スペースをより広く確保できます!

  • X

    【1階南西側洋室】白を基調とした洋室。あらかじめエアコンが設置されており、季節を問わず心地よくお過ごしいただけます。窓からは自然光が差し込み、子ども部屋や書斎、趣味の部屋など様々な用途で使いやすい空間です。

  • X

    【1階南東側洋室】壁面を広く使えるシンプルな洋室。2つの収納を備え、お子様の成長とともに増える学用品や衣類もしっかり整理できます。家具の配置がしやすいシンプルな間取りです!

  • X

    【2階トイレ】白を基調とした清潔感あふれる2階トイレ。コンパクトな空間ながら、小窓から自然光が入り、明るく圧迫感のない仕上がりです。温水洗浄便座などの機能も備え、毎日の生活に欠かせない場所を心地よく整えました。

  • X

    【リビング収納】リビングの一角に設けた可動棚付きの大きな収納スペース。掃除道具や日用品、家族で共有する書類など、生活動線に合わせて効率よく整理できます。扉付きのため、室内をすっきりと保ちながら必要な時にすぐ手に取れます。

  • X

    【造作棚】キッチン横の造作棚は家事の合間に一息ついたり、お子様の宿題を見守ったりと、家族の気配を感じながら多目的に使えます。南側の窓から光が差し込む、明るいワークスペースです。

  • X

    【手洗い器】階段横に設けた便利な手洗いスペース。帰宅後すぐに手が洗えるだけでなく、お客様にも気兼ねなく使っていただける配置です。照明にもこだわった洗練されたデザインが、住まいのアクセントとなります。

  • X

    【外部収納】玄関ポーチ横に設けた外部収納は、鍵付きで防犯面にも配慮。お子様の外遊び道具や洗車道具の保管に便利です。内部には有孔ボードを備え、小物の吊り下げ収納も可能です。汚れを室内に持ち込まず、趣味のアイテムをすっきり整理できます。

  • X

    そこで生活すればみんなが自然に「にこっ」としてしまう家。そんな住宅をお届けしたいという想いを込めて私達はCIELを造りました。

  • X

    資材価格が上がる前に、理想の住まいを今の価格で手に入れるチャンスです!大興不動産では、無理のない支払いで叶う「ちょうどいい価格」のコンセプト住宅を多数ご案内中。ご家族皆様でぜひご体感ください。

  • X

    【充実の設備付き価格】当社の建売住宅は、通常は別途費用となるテレビアンテナ・照明・リビングエアコンなどの充実設備に加え、省令準耐火構造で火災保険料も軽減。初期費用を抑えたマイホーム購入をサポート!