物件No:

12000011896

眺望の良い高台×コスパ◎!<br />ヌックや和室付きで工夫が詰まった<br />平和が丘北町【CIELFLAT】。

お問い合わせの際は「物件No.」をお伝え下さい。

電話でのお問い合わせ

0985-22-2288

売主

CIEL FLAT

4,080万円

宮崎市平和が丘北町

建売

オススメ
仲介料無料0
価格
月々支払い
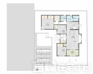
間取
学校区
築年月
階数
面積
資料ダウンロード
4,080万円
96,995
3SLDK
池内小
大宮中
2026/02
1階建
土地/255.47m²
建物/93.41m²
ダウンロードする
価格 4,080万円 月々支払 96,995
間取 3SLDK 学校区 池内小、大宮中
築年月 2026/02 階数 1階建
面積 土地/255.47m² 建物/93.41m²

POINT

この商品の特長・魅力

物件の特徴

北部中心部に近い高台エリアで、開放感のある眺望が魅力。
和室スペースはゲストルームや収納、サンルームなど多目的に活用できます。
東側には心地よい風が通り抜けるヌックを設け、リビングにくつろぎの空間をプラス。
眺望と居心地を兼ね備えた平和が丘北町【CIELFLAT】。


―立地―
◇池内小学校まで徒歩6分(450m) 
◆宮崎平和が丘郵便局まで徒歩1分(75m)

 

設備・構造―
◇制震ダンパー搭載!地震対策済みの建物構造
◆シューズクローク付きでスッキリ玄関♪
◇対面キッチンでご家族の様子を見ながら料理ができます♪
◆東側にヌックを配置。居心地の良い空間。
◇4畳の和室はゲストルームやちょっとした休憩にも◎
◆LDK広々18帖♪
◇パントリー収納あり♪
◆収納豊富なウォークインクローゼット付き
◇玄関スマートキー
◆樹脂サッシ採用
◇食洗機(深型採用)
◆キッチンタッチレス水栓
◇オール電化住宅
◆全室照明付き
◇高断熱浴槽

  • CIELFLATは「シンプルでフラットに暮らす家」をコンセプトに、勾配天井や高窓が生み出す広がりのある空間デザインが特長の平屋住宅。外壁材は雨で汚れを洗い流すKMEW製の「親水コート」を採用。宅配ボックス完備で不在時のお荷物受け取りもスムーズです♪

    CIELFLATは「シンプルでフラットに暮らす家」をコンセプトに、勾配天井や高窓が生み出す広がりのある空間デザインが特長の平屋住宅。
    外壁材は雨で汚れを洗い流すKMEW製の「親水コート」を採用。宅配ボックス完備で不在時のお荷物受け取りもスムーズです♪

  • 間取り・区画
  • 各居室には収納スペースを設けており、衣類や生活用品をすっきりと整理できます。ゆとりある空間が確保できることで、お部屋の使い方にも幅が広がります。開放感のあるリビングでは、ご家族との団欒のひとときをお楽しみください。

    各居室には収納スペースを設けており、衣類や生活用品をすっきりと整理できます。ゆとりある空間が確保できることで、お部屋の使い方にも幅が広がります。
    開放感のあるリビングでは、ご家族との団欒のひとときをお楽しみください。

  • 約18帖の広さがあります。リビングは食事・くつろぎ・家族の会話など、暮らしの真ん中にふさわしい空間です。

    約18帖の広さがあります。リビングは食事・くつろぎ・家族の会話など、暮らしの真ん中にふさわしい空間です。

  • 敷地内に3台の駐車スペースを確保。前面道路は約8mで、車の出し入れもスムーズです。

    敷地内に3台の駐車スペースを確保。
    前面道路は約8mで、車の出し入れもスムーズです。

  • 立面図掲載中。各立面図(東・西・南・北)から建物の形状・窓の配置・屋根勾配などがご確認いただけます。

    立面図掲載中。各立面図(東・西・南・北)から建物の形状・窓の配置・屋根勾配などがご確認いただけます。

  • 【仲介手数料無料】こちらの物件は仲介手数料が不要です。本来不動産の購入をする際は(本体価格×3%+6万円×消費税)の仲介手数料が必要ですが、直接お問い合わせいただければ当該物件は仲介手数料不要です。

    【仲介手数料無料】こちらの物件は仲介手数料が不要です。本来不動産の購入をする際は(本体価格×3%+6万円×消費税)の仲介手数料が必要ですが、直接お問い合わせいただければ当該物件は仲介手数料不要です。

  • 【制震ダンパー】揺れを吸収する装置である制震ダンパーを住宅に組み込むと、地震発生時における家の変位を大幅に低減できる場合があります。また、変位量の抑制は家の損傷を最小限に抑え、繰り返す地震に対しても高い強度を期待できます。

    【制震ダンパー】揺れを吸収する装置である制震ダンパーを住宅に組み込むと、地震発生時における家の変位を大幅に低減できる場合があります。また、変位量の抑制は家の損傷を最小限に抑え、繰り返す地震に対しても高い強度を期待できます。

  • 子育てグリーン住宅支援事業対象物件につき40万円の補助金が受け取れます!※予算に達し次第予告なしに終了します。

    子育てグリーン住宅支援事業対象物件につき40万円の補助金が受け取れます!※予算に達し次第予告なしに終了します。

  • 【フラット35SA】省エネや耐震性など「質の高い住宅」への金利引き下げ制度【フラット35SA】対応住宅のため、金利がお得!

    【フラット35SA】省エネや耐震性など「質の高い住宅」への金利引き下げ制度【フラット35SA】対応住宅のため、金利がお得!

  • ご家族が集まるリビングは、明るく広がりのある心地よい空間。対面式キッチンを採用しているので、お料理をしながらご家族との会話や様子を見守れます。

    ご家族が集まるリビングは、明るく広がりのある心地よい空間。
    対面式キッチンを採用しているので、お料理をしながらご家族との会話や様子を見守れます。

  • ご家族との食事や会話を楽しむダイニングは、明るく開放感のある心地よい空間。自然と会話が弾み、家族の時間がより豊かに感じられます。キッチンとの動線もスムーズで、配膳や後片付けもラクにこなせる、暮らしにやさしい設計です。

    ご家族との食事や会話を楽しむダイニングは、明るく開放感のある心地よい空間。
    自然と会話が弾み、家族の時間がより豊かに感じられます。
    キッチンとの動線もスムーズで、配膳や後片付けもラクにこなせる、暮らしにやさしい設計です。

  • そこで生活すればみんなが自然に「にこっ」としてしまう家。そんな住宅をお届けしたいという想いを込めて私達はCIELFLATを造りました。

    そこで生活すればみんなが自然に「にこっ」としてしまう家。そんな住宅をお届けしたいという想いを込めて私達はCIELFLATを造りました。

  • CIELFLATの特徴は大きく分けて5つ。建売でありながら建売らしくないのが人気の理由。完成するまでに7割が完売する理由はここにあります。

    CIELFLATの特徴は大きく分けて5つ。建売でありながら建売らしくないのが人気の理由。完成するまでに7割が完売する理由はここにあります。

  • CIELFLATのオリジナルコンセプト40の中でも特に人気の6点セットです。その他にも34個の嬉しい設備・仕様がたくさん♪

    CIELFLATのオリジナルコンセプト40の中でも特に人気の6点セットです。その他にも34個の嬉しい設備・仕様がたくさん♪

  • 【地盤保証】地盤の保証とは地盤のトラブルによって住宅に損害が発生した場合に建物や地盤の修繕費用などが保証される制度です。大事なお住まいを守るための安心保証です。

    【地盤保証】地盤の保証とは地盤のトラブルによって住宅に損害が発生した場合に建物や地盤の修繕費用などが保証される制度です。大事なお住まいを守るための安心保証です。

  • 【しろあり10年保証】木造住宅の天敵であるしろありは、腐食することで建物の耐震性も下げます。大事なマイホームに長い間住み続けるためには嬉しい保証です。

    【しろあり10年保証】木造住宅の天敵であるしろありは、腐食することで建物の耐震性も下げます。大事なマイホームに長い間住み続けるためには嬉しい保証です。

  • 【省令準耐火構造】建築基準法で定める準耐火構造に準ずる防火機能を持つ構造として、住宅金融支援機構が定める基準に適合する住宅をいいます。①外部からの延焼防止②各室防火③他室への延焼遅延が特徴となっております。省令準耐火仕様であれば、火災保険が通常よりお安くなる特典が付いています。

    【省令準耐火構造】建築基準法で定める準耐火構造に準ずる防火機能を持つ構造として、住宅金融支援機構が定める基準に適合する住宅をいいます。①外部からの延焼防止②各室防火③他室への延焼遅延が特徴となっております。省令準耐火仕様であれば、火災保険が通常よりお安くなる特典が付いています。

  • 【ウレタン断熱】ウレタン吹き付けを使用することにより細部に生じる隙間を完全に解消することが可能になるため、結露による建物の劣化を防ぎ、耐久性を高めます。

    【ウレタン断熱】ウレタン吹き付けを使用することにより細部に生じる隙間を完全に解消することが可能になるため、結露による建物の劣化を防ぎ、耐久性を高めます。

  • 【樹脂窓】樹脂窓とは、窓のフレームが樹脂製でできている窓のことです。 断熱/遮熱/気密性に非常に優れています。

    【樹脂窓】樹脂窓とは、窓のフレームが樹脂製でできている窓のことです。 断熱/遮熱/気密性に非常に優れています。

  • 【キッチン(人造大理石の天板)】キッチンは人造大理石の天板を使用。人造大理石は汚れが付きにくく、水垢も目立ちにくいので、お掃除は比較的に楽で水まわり設備に適した素材です。

    【キッチン(人造大理石の天板)】キッチンは人造大理石の天板を使用。人造大理石は汚れが付きにくく、水垢も目立ちにくいので、お掃除は比較的に楽で水まわり設備に適した素材です。

  • 【浴室】雨の日でも洗濯物がしっかり乾かせる浴室乾燥機は、梅雨の時期や花粉の季節にも大活躍。さらに保温機能付きの浴槽は、お湯が冷めにくく、光熱費の節約にもつながります。毎日の暮らしにうれしい、快適さと経済性を備えた設備です。

    【浴室】雨の日でも洗濯物がしっかり乾かせる浴室乾燥機は、梅雨の時期や花粉の季節にも大活躍。
    さらに保温機能付きの浴槽は、お湯が冷めにくく、光熱費の節約にもつながります。
    毎日の暮らしにうれしい、快適さと経済性を備えた設備です。

  • 【三面鏡化粧台】三面鏡の裏側は収納スペースとなっているため、洗面まわりの小物を収納するのにちょうど良く見た目もすっきりします。また、キレイアップ水栓仕様で蛇口が上部に設置されているため、水垢などの汚れがつきにくく、お手入れが簡単です。

    【三面鏡化粧台】三面鏡の裏側は収納スペースとなっているため、洗面まわりの小物を収納するのにちょうど良く見た目もすっきりします。また、キレイアップ水栓仕様で蛇口が上部に設置されているため、水垢などの汚れがつきにくく、お手入れが簡単です。

  • 【温水洗浄便座】いつでも快適にトイレを利用するためには無くてはならない必需品。温水洗浄便座は紙資源の節約はもちろん衛生面でも効果的です。

    【温水洗浄便座】いつでも快適にトイレを利用するためには無くてはならない必需品。温水洗浄便座は紙資源の節約はもちろん衛生面でも効果的です。

  • 【宅配ボックス】不在時でも荷物が受け取れるので再配達の手間も省けます。

    【宅配ボックス】不在時でも荷物が受け取れるので再配達の手間も省けます。

  • 【オール電化】家庭内で用いるすべてのエネルギーを電気に統一するオール電化は、夜間の電気代が安くなるので家計に嬉しい設備です。電気の使用のみになるので基本料金の一本化や震災時にタンク内の水を利用できるなどのメリットもあります。

    【オール電化】家庭内で用いるすべてのエネルギーを電気に統一するオール電化は、夜間の電気代が安くなるので家計に嬉しい設備です。電気の使用のみになるので基本料金の一本化や震災時にタンク内の水を利用できるなどのメリットもあります。

  • 【ZEH基準を満たした住宅】ZEH(ゼッチ)とは「エネルギー収支を0以下にすることを目指した住宅」のことで、住宅の電力を太陽光発電などによってその住宅でまかなうことで、外部からの電力に頼らない建物のことです。※本物件は太陽光が搭載されていないため、ZEH住宅ではなくZEH基準のエネルギー性能を満たした住宅となります。

    【ZEH基準を満たした住宅】ZEH(ゼッチ)とは「エネルギー収支を0以下にすることを目指した住宅」のことで、住宅の電力を太陽光発電などによってその住宅でまかなうことで、外部からの電力に頼らない建物のことです。
    ※本物件は太陽光が搭載されていないため、ZEH住宅ではなくZEH基準のエネルギー性能を満たした住宅となります。

  • 【BELS】国土交通省が定めた「建築物の省エネ性能表示ガイドライン(建築物のエネルギー消費性能の表示に関する指針)」に基づく第三者認証制度。※BELSは物件によって評価が異なります。

    【BELS】国土交通省が定めた「建築物の省エネ性能表示ガイドライン(建築物のエネルギー消費性能の表示に関する指針)」に基づく第三者認証制度。
    ※BELSは物件によって評価が異なります。

Ciel Flat

STANDARD

40

コミコミ充実設備!この設備が標準で付いています。

断熱玄関ドア

スマートキー

カメラ付インターホン

手動シャッター付
(1階掃き出し部分)

郵便ポスト

宅配ボックス

TVアンテナ

防草シート
(シート上砂利敷)

土間コンクリート舗装

Low-E複層ガラス
(アルゴンガス⼊リ)

樹脂窓

網戸

シューズクローク

全部屋収納付

ウォークイン
クローゼット

カーテンレール付
(一部)

深型⾷洗機付

⼈造⼤理⽯のキッチン天板

タッチレス水栓

IHクッキングヒーター

三面鏡化粧台

キレイアップ⽔栓

保温浴槽

浴室換気乾燥暖房機付

温水洗浄便座

室内物干し

収納ニッチ

リビングエアコン

全部屋照明付

突板フローリング

オール電化

ヒノキ材
(⼟台・柱)

人工乾燥材

制震ダンバー

ウレタン断熱

「BELS」省エネ基準に適合する仕様

「ZEH」基準を
満たした住宅

省令準耐火構造

地盤保証
(最長35年)

しろあり10年保証

※BELSは物件によって評価が異なります
※物件により仕様が異なる場合がございます

※2024年6月28日時点

この商品のポイント

Point

2025/11/12

池内小学校まで徒歩6分!閑静な高台住宅街に暮らす平和が丘北町【CIELFLAT】 ◇仲介手数料無料!◆全室照明付き!◇リビングエアコン付き!◆ZEH基準住宅◇制震ダンパー搭載◆カーテンレール付き◇タッチレス水栓・深型食洗機付キッチン!◆キーレス玄関

動画ライブラリー

この物件の支払い例(当初10年間)

月々

96,995

頭金0円・ボーナス払い10万円(年2回)

※全額借入、35年返済、固定金利1.1%の場合

※お支払い例は、当社紹介の地方銀行ローン
(固定金利1.1%、35年返済、融資限度額1億円)となります。
※経済情勢等により内容が変更となる場合がございます。
※お借り入れ条件によっては支払金額が
変更になる可能性があります。

周辺情報

※「地図上の対象物件の位置はプログラムで自動表示したもので、
実際の位置と異なる場合があります。

ログインすると地図検索が利用可能です

物件概要

物件種別 新築住宅 物件No. 12000011896
所在地 宮崎県宮崎市平和が丘北町

※ログインでマップの閲覧可能

小学校区 池内小学校(450m) 中学校区 大宮中学校(2,400m)
土地面積 255.47m²(77.27坪) 建物面積 93.41m²(28.25坪)
構造 木造 階数 地上1階
間取り 3SLDK 築年月 2026年02月
駐車場 有(2台) 水道
ガス 排水
都市計画 市街化区域 用途地域 第一種低層住居専用
地目 宅地 土地権利 所有権
国土法 不要 私道負担
建ぺい率 40% 容積率 60%
取引態様 売主 現況 建築中
引渡時期 相談 
交通 平和が丘団地バス停まで徒歩2分
接道状況 西側 幅員8m 公道に接道
設備
セールス
ポイント
池内小学校まで徒歩6分!閑静な高台住宅街に暮らす平和が丘北町【CIELFLAT】
仲介手数料 0円
情報登録日 2025年10月10日
情報更新日 2025年11月12日
有効期限 2025年11月26日 
※次回更新日は前回更新日より14日以内

お問い合わせ・見学予約

お急ぎの方はこちらへどうぞ

LINEで簡単お問い合わせ!
  • 入力
  • 確認
  • 完了

必要項目を入力し「内容を確認する」ボタンを
押してください。

必須

お問い合わせ内容

必須

お名前

必須

フリガナ

必須

メールアドレス

必須

電話番号

任意

ご連絡希望時間帯

任意

その他の要望

【個人情報の取扱いについて】

本フォームから記入・登録された情報は、資料送付・電子メール送信・電話連絡などの目的で利用・保管します。
プライバシーポリシーにつきましてはこちらをご覧ください。

内容を確認する
ページトップへ戻る
  • X

    CIELFLATは「シンプルでフラットに暮らす家」をコンセプトに、勾配天井や高窓が生み出す広がりのある空間デザインが特長の平屋住宅。
    外壁材は雨で汚れを洗い流すKMEW製の「親水コート」を採用。宅配ボックス完備で不在時のお荷物受け取りもスムーズです♪

  • X
  • X

    各居室には収納スペースを設けており、衣類や生活用品をすっきりと整理できます。ゆとりある空間が確保できることで、お部屋の使い方にも幅が広がります。
    開放感のあるリビングでは、ご家族との団欒のひとときをお楽しみください。

  • X

    約18帖の広さがあります。リビングは食事・くつろぎ・家族の会話など、暮らしの真ん中にふさわしい空間です。

  • X

    敷地内に3台の駐車スペースを確保。
    前面道路は約8mで、車の出し入れもスムーズです。

  • X

    立面図掲載中。各立面図(東・西・南・北)から建物の形状・窓の配置・屋根勾配などがご確認いただけます。

  • X

    【仲介手数料無料】こちらの物件は仲介手数料が不要です。本来不動産の購入をする際は(本体価格×3%+6万円×消費税)の仲介手数料が必要ですが、直接お問い合わせいただければ当該物件は仲介手数料不要です。

  • X

    【制震ダンパー】揺れを吸収する装置である制震ダンパーを住宅に組み込むと、地震発生時における家の変位を大幅に低減できる場合があります。また、変位量の抑制は家の損傷を最小限に抑え、繰り返す地震に対しても高い強度を期待できます。

  • X

    子育てグリーン住宅支援事業対象物件につき40万円の補助金が受け取れます!※予算に達し次第予告なしに終了します。

  • X

    【フラット35SA】省エネや耐震性など「質の高い住宅」への金利引き下げ制度【フラット35SA】対応住宅のため、金利がお得!

  • X

    ご家族が集まるリビングは、明るく広がりのある心地よい空間。
    対面式キッチンを採用しているので、お料理をしながらご家族との会話や様子を見守れます。

  • X

    ご家族との食事や会話を楽しむダイニングは、明るく開放感のある心地よい空間。
    自然と会話が弾み、家族の時間がより豊かに感じられます。
    キッチンとの動線もスムーズで、配膳や後片付けもラクにこなせる、暮らしにやさしい設計です。

  • X

    そこで生活すればみんなが自然に「にこっ」としてしまう家。そんな住宅をお届けしたいという想いを込めて私達はCIELFLATを造りました。

  • X

    CIELFLATの特徴は大きく分けて5つ。建売でありながら建売らしくないのが人気の理由。完成するまでに7割が完売する理由はここにあります。

  • X

    CIELFLATのオリジナルコンセプト40の中でも特に人気の6点セットです。その他にも34個の嬉しい設備・仕様がたくさん♪

  • X

    【地盤保証】地盤の保証とは地盤のトラブルによって住宅に損害が発生した場合に建物や地盤の修繕費用などが保証される制度です。大事なお住まいを守るための安心保証です。

  • X

    【しろあり10年保証】木造住宅の天敵であるしろありは、腐食することで建物の耐震性も下げます。大事なマイホームに長い間住み続けるためには嬉しい保証です。

  • X

    【省令準耐火構造】建築基準法で定める準耐火構造に準ずる防火機能を持つ構造として、住宅金融支援機構が定める基準に適合する住宅をいいます。①外部からの延焼防止②各室防火③他室への延焼遅延が特徴となっております。省令準耐火仕様であれば、火災保険が通常よりお安くなる特典が付いています。

  • X

    【ウレタン断熱】ウレタン吹き付けを使用することにより細部に生じる隙間を完全に解消することが可能になるため、結露による建物の劣化を防ぎ、耐久性を高めます。

  • X

    【樹脂窓】樹脂窓とは、窓のフレームが樹脂製でできている窓のことです。 断熱/遮熱/気密性に非常に優れています。

  • X

    【キッチン(人造大理石の天板)】キッチンは人造大理石の天板を使用。人造大理石は汚れが付きにくく、水垢も目立ちにくいので、お掃除は比較的に楽で水まわり設備に適した素材です。

  • X

    【浴室】雨の日でも洗濯物がしっかり乾かせる浴室乾燥機は、梅雨の時期や花粉の季節にも大活躍。
    さらに保温機能付きの浴槽は、お湯が冷めにくく、光熱費の節約にもつながります。
    毎日の暮らしにうれしい、快適さと経済性を備えた設備です。

  • X

    【三面鏡化粧台】三面鏡の裏側は収納スペースとなっているため、洗面まわりの小物を収納するのにちょうど良く見た目もすっきりします。また、キレイアップ水栓仕様で蛇口が上部に設置されているため、水垢などの汚れがつきにくく、お手入れが簡単です。

  • X

    【温水洗浄便座】いつでも快適にトイレを利用するためには無くてはならない必需品。温水洗浄便座は紙資源の節約はもちろん衛生面でも効果的です。

  • X

    【宅配ボックス】不在時でも荷物が受け取れるので再配達の手間も省けます。

  • X

    【オール電化】家庭内で用いるすべてのエネルギーを電気に統一するオール電化は、夜間の電気代が安くなるので家計に嬉しい設備です。電気の使用のみになるので基本料金の一本化や震災時にタンク内の水を利用できるなどのメリットもあります。

  • X

    【ZEH基準を満たした住宅】ZEH(ゼッチ)とは「エネルギー収支を0以下にすることを目指した住宅」のことで、住宅の電力を太陽光発電などによってその住宅でまかなうことで、外部からの電力に頼らない建物のことです。
    ※本物件は太陽光が搭載されていないため、ZEH住宅ではなくZEH基準のエネルギー性能を満たした住宅となります。

  • X

    【BELS】国土交通省が定めた「建築物の省エネ性能表示ガイドライン(建築物のエネルギー消費性能の表示に関する指針)」に基づく第三者認証制度。
    ※BELSは物件によって評価が異なります。